Дома под ключ в Евпатории
Отзывы из Яндекс Карт
4.9
110 отзывов
Дополнительные услуги 88%
2 154 оценок
Комплектации 89%
1 535 оценок
Планировки 90%
2 484 оценок
Проекты 93%
2 231 оценок
С
Залина Евдокимова01.07.2025 г.
Обратилась в «Брус дома» по рекомендации подруги и теперь сама с удовольствием их рекомендую. Построили мне небольшую, но очень функциональную баню из профилированного бруса. Работали чисто, убирали за собой, видна была забота о результате. Теперь паримся с подругами каждые выходные.
Отзывы из Google Карт
4.8
66 отзывов
Дополнительные услуги 88%
2 154 оценок
Комплектации 89%
1 535 оценок
Планировки 90%
2 484 оценок
Проекты 93%
2 231 оценок
С
Таисия Ф.24.04.2025 г.
Каркасная технология позволила нам быстро въехать в новый дом, и мы по достоинству оценили все её плюсы! Отличная звукоизоляция, ровные стены и высокие энергосберегающие свойства — всё это заслуга грамотных специалистов из «Брус дома».
Отзывы из 2гис
4.9
50 отзывов
Дополнительные услуги 88%
2 154 оценок
Комплектации 89%
1 535 оценок
Планировки 90%
2 484 оценок
Проекты 93%
2 231 оценок
С
Надежда Коровина24.03.2025 г.
Выражаю огромную благодарность компании «Брус дома» за наш прекрасный новый дом из профилированного бруса, который построили быстро и очень качественно, теперь каждые выходные превращаются в настоящий праздник для всей нашей семьи.


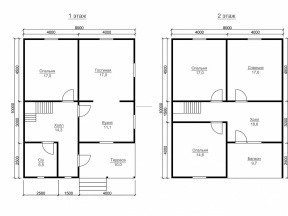
Проект №88 Каркасный дом 8х10

каркас из строганой доски
Каркасный дом (150 мм) 8х10 Толщина утепления 150 мм 4010200 Заказать
Каркасный дом (200 мм) 8х10 Толщина утепления 200 мм 4290200 Заказать

Доставка включена в стоимость дома!

Чтобы получить персональную планировку, пользуйтесь планировщиком.

С использованием планировщика можно сделать эскизы, планы, чертежи, схемы уникального дома с эркером, мансардой, с нужным количеством комнат. Таким образом вы сможете получить идеальный проект, который 100% отвечает вашим потребностям.

Вы можете подобрать подходящий тип крыши: четырехскатная, двускатная и вальмовая. Двухскатную считают самой востребованной у малометражных построек.

Самые востребованные размеры: мини - до 50 кв. М (в основном, одноэтажные дома); компактные - от 70 до 100м2 (обычно двухэтажные); большие дома - начиная от 150 м2 и больше.

Строим дуплексы - каркасные дома с двумя входами, рассчитанные на две семьи. Такие дома строятся сразу для двух хозяев и разделяются на две части, для каждой половины с отдельным входом.


Наши работы

Перейти в галерею


Комплектация

Площадь застройки: 80 м2
Длина: 10 м
Ширина: 8 м
Общая площадь: 138.8 м2
Исполнение Под ключ (с отделкой)
Фундамент Свайно-винтовой или ж/б сваи (рассчитываются отдельно).
Гидроизоляция фундамента Рубероид в два слоя.
Основание (обвязка) Из обрезного бруса 150х150 мм. 150х200 мм. согласно выбранной толщине утепления. Торцевая доска строганая 45х145/45х195+/-5 мм. согласно выбранной толщине утепления. Обработка антисептиком.
Цокольное перекрытие Строганая доска камерной сушки 45х145/45х195+/-5 мм. с шагом 590 мм. Обработка антисептиком.
Пол черновой Обрезная доска камерной сушки 20х100 мм.
Влаго-ветрозащита чернового пола Мембрана Ондутис А100.
Внешние стены Стойки каркаса из строганой доски камерной сушки 45х145/45х195+/-5 мм. с шагом 590 мм. Верхняя двойная и нижняя обвязки из строганой доски камерной сушки 45х145/45х195+/-5 мм. Разгрузочный ригель из строганой доски 45х145+/-5 мм. Укосины из строганой доски 20х95 мм.
Перегородки Стойки каркаса из строганой доски камерной сушки 45х95+/-5 мм. с шагом 590 мм. Верхняя двойная и нижняя обвязки из строганой доски 45х95+/-5 мм. Разгрузочный ригель из строганой доски камерной сушки 45х145+/-5 мм. Укосины из строганой доски камерной сушки 20х95 мм.
Сборка каркаса На гвозди.
Высота от пола до потолка Дом одноэтажный: 2,5 м. Дом с мансардой: 1-ый этаж- 2,5 м.
2-ой этаж (мансарда)- 2,3 м.
Дом в полтора и два этажа:
1-ый этаж 2,5 м.
2-ой этаж 2,4 м. в полутораэтажном доме
2,5 м. в двухэтажном доме.
Внешняя отделка стен Имитация бруса камерной сушки, сорт АВ, толщиной 17 мм. Монтаж через строганый брусок камерной сушки 45х45+/-5 мм. (вентилируемый фасад). Влаго-ветрозащитная мембрана- Ондутис А100.
Внутренняя отделка стен, перегородок Евровагонка камерной сушки, сорт АВ, толщиной 12,5 мм. по строганой рейке 20х40+/-5 мм. либо ГКЛ 12,5 мм.
Отделка потолка Евровагонка камерной сушки, сорт АВ толщиной, 12,5 мм. по строганой рейке 20х40+/-5 мм. либо ГКЛ 12,5 мм.
Пол чистовой Шпунтованная доска камерной сушки толщиной 35-36 мм. сорт АВ. по строганой рейке 20х40+/-5 мм. либо шпунтованная ДСП 16 мм. по разряженной обрешётке из строганой доски камерной сушки 20х95+/-5 мм.
Утепление (пол, потолок) Минеральная вата Knauf 150/200 мм. согласно выбранной толщине утепления.
Утепление стен Плитный утеплитель Rockwool, толщиной 150/200 мм. согласно выбранной толщине утепления.
Звукоизоляция перегородок Плитный утеплитель Rockwool, толщиной 100 мм.
Пароизоляция (стены, перегородки, пол, потолок) Плёнка Ондутис R70. Дополнительная герметизация нахлёстов/примыканий пароизоляционной плёнки клейкой лентой Delta.
Окна Двухкамерные стеклопакеты ПВХ белого цвета, профиль 60 мм. В комплекте: отливы, подоконники, москитные сетки.
Двери Входная- металлическая, утеплённая (Россия). Межкомнатные- филёнчатые.
Наличники на окна и двери Наличник деревянный, строганый, камерной сушки 70-90 мм. с двух сторон.
Лестница (при наличии второго этажа) Деревянная, одно или двухмаршевая. Перила- заводские резные, балясины- заводские точеные, устанавливаются стартовые точёные столбы. Ступени 40х200 мм. Тетива лестницы- 90х140 мм.
Крыша Двускатная, ломаная или вальмовая в соответствии с проектом.
Стропильная система Выполнена из строганой доски камерной сушки 45х145/45х195+/-5 мм. Шаг установки стропил 590 мм.
Обрешётка Выполняется из строганой доски камерной сушки толщиной 20х95+/-5 мм. Шаг крепления обрешетки 350 мм. Контробрешётка выполняется из строганого бруска камерной сушки 45х45+/-5 мм. Крепится по стропилам (вентиляционный зазор).
Подкровельная мембрана Ондутис А100
Кровельное покрытие (на выбор) Металлочерепица 0,45 мм. Цвет на выбор.
Фронтоны (при наличии) Каркас из строганой доски камерной сушки 45х145/45х195+/-5 мм. Обшиваются имитацией бруса камерной сушки, сорт АВ, толщиной 17 мм. Монтаж через строганый брусок камерной сушки 45х45+/-5 мм. (вентилируемый фасад). Влаго-ветрозащитная мембрана- Ондутис А100. Монтаж вентиляционных решёток.
Свесы крыши Ширина 400 мм. Подшиваются вагонкой камерной сушки, сорт АВ.
Терраса/балкон (при наличии) Устанавливаются опорные столбы из строганного бруса камерной сушки 140х140 мм.
Отделка потолка террасы/балкона Евровагонка камерной сушки толщиной 12,5 мм. сорт АВ.
Пол террасы/балкона Шпунтованная доска камерной сушки толщиной 35-36 мм. сорт АВ.
Ограждение террасы/балкона Перила- строганая доска. Балясины- точеные, фигурные. Либо ограждение в скандинавском стиле. Устанавливаются ступени у входа.
Допуск на геометрические параметры Составляет +/- 50 мм по длине с каждой стороны.
Допускается стыковка имитации бруса, вагонки и половой доски По всему периметру стен дома (если ширина и длина дома более 6,0 метров). Вагонки и доски пола в каждой отдельной комнате.
Допуски по имитации бруса, вагонке, доске +/- 5 мм.
В стоимость включена Доставка комплекта материала в радиусе 500 км. от г. Пестова Новгородской области и сборка дома на вашем участке.
Гарантия 5 лет.
Бытовка строительная 2,0х3,0 м. каркасно-щитовая. Стоимость 23000 руб. Остаётся на участке Заказчика.
Туалет 1,0х1,0 м. каркасно-щитовой. Стоимость 12000 руб. Остаётся на участке Заказчика.
Генератор Стоимость аренды на весь срок строительства 15000 руб. ГСМ за счёт Заказчика.

Сооружение дома осуществляется в нескольких видах: под усадку, когда сруб отстаивается некоторое время и полностью под ключ.

Зимой эксперты рекомендуют строить дом в морозную погоду, чтобы каркас не успел промокнуть, в летний период - не под дождем.

Подходящими для дачи или сада являются экономичные дома на винтовых сваях, в нашем онлайн-каталоге вы увидите одноэтажные и полуторатажные варианты.

Если дом строится для проживания круглый год, можем предложить надежные и теплые коттеджи и дома на ленточных и плитных фундаментах.

Мы предлагаем 2 вида утепления: 200 мм и 150 мм. Каркасные дома с утеплителем 200 миллиметров получаются теплее, но стоят дороже.

Дополнительные услуги


Каркасник балконом и маленькой террасой, по плану 88 полутораэтажный с теплой двускатной строительной конструкцией крыши, может похвастаться экологической безопасностью, в связи с применением высоконадежных ОСП-плит, ваты базальтовой и минеральной, что создает замечательную морозостойкость, идеальный микроклимат в помещении. Параметры этого уютного гнездышка составляют 8х10 м., суммарная пригодная для жизни площадь - 138.8 кв.м.. Наша фирма в кратчайшие сроки создаст для вас дом из каркаса по индивидуальному или типовому проекту в Евпатории в любое время года и на любом типе грунта.

Популярные проекты


Бани из бруса с балконом Бани из бруса с верандой Одноэтажные бани из бруса
хит продаж
Тип:
Общая площадь: 2
2856200
от 2720200
хит продаж
Тип:
Общая площадь: 2
2257700
от 2150200
хит продаж
Тип:
Общая площадь: 2
3381200
от 3220200
Дома из бруса

Заказать или задать вопрос



Заказать или задать вопрос

Заказать звонок